- Ý tưởng thiết kế khách sạn hiện đại thu hút khách hàng
- Đèn Mắt Trâu: Khái Niệm, Ưu Điểm & Giá Tốt
- Với 1m2 tường xây hết bao nhiêu gạch ? Cách tính theo loại gạch ?
- Giường pallet gỗ có tốt không? Nên mua pallet gỗ ở đâu?
- 【TCVN 】 Tiêu Chuẩn Xếp Hạng Sao Resort Cập Nhật 12-2025
- Tổng hợp 5 món đồ nội thất trang trí cho phòng ngủ hiện đại
Tôi dự định xây nhà phố 2 tầng phong cách hiện đại trên đất rộng 95m2, có sân trước trồng cây xanh.
Nhu cầu sử dụng không gian cụ thể như sau:
- Tầng 1: Sân trước để xe và trồng cây xanh, phòng khách, bếp kết hợp phòng ăn, phòng ngủ ông bà, 01 phòng vệ sinh chung, sân sau.
- Tầng 2: 02 phòng ngủ, 01 phòng vệ sinh chung rộng rãi. Trong phòng ngủ bố trí bàn làm việc.
Nhà tôi theo đạo nên không cần làm phòng thờ. Mong được các kiến trúc sư tư vấn phương án thiết kế nhà phố 2 tầng tiện nghi, thoáng đẹp và phù hợp với nhu cầu sử dụng của gia đình tôi.
Trân trọng cảm ơn!
Kiến trúc sư tư vấn thiết kế nhà phố 2 tầng hiện đại:
Dựa theo thông tin mà gia chủ cung cấp cũng như yêu cầu thiết kế nhà cụ thể, kiến trúc sư đưa ra phương án tư vấn thiết kế kiến trúc nhà phố 2 tầng như sau để bạn tham khảo:

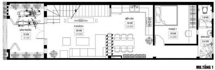
- Tầng 1: Phía trước ngôi nhà là khoảng sân có diện tích vừa phải làm nơi để xe cho các thành viên gia đình và quan khách. Tại đây, gia chủ có thể trồng hoa, cây cảnh tạo không gian sống xanh mát, thoáng đãng.
Phòng khách nhà phố đẹp được thiết kế với diện tích khá rộng rãi, bài trí nội thất sang trọng. Cầu thang dẫn lên tầng trên nằm gọn gàng ở góc nhà bên phải, ngay sau cửa chính. Căn phòng đón được ánh sáng tự nhiên tối đa và sở hữu tầm nhìn thoáng đãng nhờ các cửa sổ kính cường lực trong suốt mở ra ngoài.
Bếp nấu kết hợp phòng ăn liên thông với phòng khách, được trang bị đầy đủ tiện nghi hiện đại. Tại đây, kiến trúc sư bố trí cửa sổ mở ra ngoài đón sáng tự nhiên và đối lưu không khí tốt.
Phòng ngủ của ông bà ở tầng trệt được thiết kế đủ rộng với nội thất cơ bản, có cửa sổ mở ra sân sau thoáng đãng, thuận tiện cho sinh hoạt của người già. Căn phòng sử dụng nội thất gỗ chủ đạo, tông màu nâu trầm ấm áp tạo cảm giác thư giãn.
Phía trong cùng tầng 1 là phòng vệ sinh chung tiện nghi và khu giặt phơi quần áo cho các thành viên gia đình.
- Tầng 2: Mặt sàn tầng 2 dành để bố trí cho hai phòng ngủ, phòng vệ sinh, sảnh đệm và không gian làm việc.
Trong đó, phòng ngủ master nằm ở mặt phía trước với diện tích rộng rãi, kết hợp góc làm việc tiện nghi. Ngoài khung cửa kính thoáng sáng, căn phòng còn có cửa lớn mở ra ban công riêng. Nhờ đó, không gian ngủ nghỉ của vợ chồng gia chủ luôn thoáng đãng, tận dụng được tối đa ánh sáng tự nhiên.
Phòng ngủ của hai cô con gái nằm ở mặt sau nhà, được trang bị đầy đủ nội thất cơ bản, phục vụ nhu cầu sinh hoạt và học tập hàng ngày của trẻ. Tương tự phòng ngủ lớn, phòng các con cũng có cửa sổ mở ra ngoài đón sáng, thông gió tự nhiên.
Ở giữa hai phòng ngủ là sảnh đệm rộng thoáng và phòng vệ sinh chung tiện nghi.

Phối cảnh 3D mẫu nhà phố 2 tầng phong cách hiện đại
Gợi ý bài trí nội thất:
|
|
| Phòng khách nhà ống là sự kết hợp hài hòa giữa nét hiện đại và yếu tố truyền thống với chất liệu gỗ nâu ấm áp, thân thiện. |

Sắc vàng chanh từ ghế ăn, phụ kiện tạo điểm nhấn sinh động, vui tươi cho không gian phòng ăn và bếp nấu.

Không gian phòng ngủ master rộng rãi, bài trí nội thất thoáng đẹp, hài hòa. Rèm cửa hai lớp giúp điều tiết linh hoạt ánh sáng tự nhiên vào phòng.
|
|
| Phòng ngủ con gái với bảng màu hồng - trắng kết hợp ăn ý mang đến vẻ đẹp lãng mạn, nữ tính cho không gian ngủ nghỉ. |

Phòng tắm, vệ sinh đầy đủ tiện ích hiện đại trong nhà phố 2 tầng. Vách kính trong suốt tạo độ thông thoáng cho căn phòng.
Theo: dothi.net

